1710 on the Blvd

1710 Thousand Oaks Blvd

Second Generation Restaurant Space

A fully built-out restaurant opportunity in the heart of Downtown Thousand Oaks. Turn-key kitchen. Premium location. Immediate availability.

2,665
Square Feet
$4.50
Per SF NNN
82
Walk Score
Scroll to explore
01

Turn-Key Commercial Kitchen

Fully built-out with high-end features including hoods, walk-in refrigeration, prep areas, and commercial-grade equipment. Move in and start operating.

02

Prime Downtown Location

Part of the new mixed-use development in the Downtown Corridor of Thousand Oaks. Outstanding exposure and visibility from Thousand Oaks Blvd.

03

Multiple Outdoor Dining Areas

Adjacent to the Boulevard and the property's signature piazza. String lights, fountain, and dedicated patio seating create an inviting atmosphere.

04

Built-In Customer Base

36 luxury apartments including live/work units within the project. Your first customers are already here, living right upstairs.

Restaurant Interior
Commercial Kitchen

The Space

Ready for Your Vision

This second-generation restaurant space comes fully equipped with a commercial kitchen, abundant natural light from floor-to-ceiling windows, and flexible seating areas. The previous buildout means you save significantly on construction costs and time-to-open.

2,665 SF
Total Space
$4.50
Per SF NNN
Multiple
Patio Areas
Now
Available

Turn-Key Infrastructure

A Commercial Kitchen Ready to Operate

Skip the buildout. This second-generation space comes fully equipped with commercial-grade equipment, ventilation, and prep areas—saving you significant time and capital.

Commercial Hood System
Pizza Ovens
Walk-In Cooler
Fryers & Range
Prep Stations
Refrigeration
Outdoor Dining Piazza

Where indoor comfort meets
outdoor ambiance

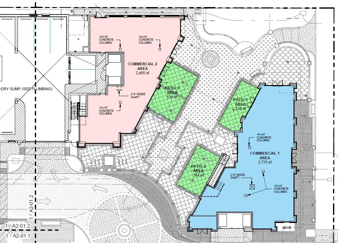
Site Plan

Your Place in the Project

1710 Site Plan

The Neighborhood

A Corridor in Transformation

Caruso's The Lakes

  • Erewhon 2026
  • Sora Handroll Bar 2026
  • Sunlife Organics
  • Fogo de Chao
  • California Pizza Kitchen
  • + New Residences

New Development

  • Residences at The Lakes — 165 units
  • 500 E Thousand Oaks Blvd — 328 units
  • TO Ranch — 420 units
  • Growing density & foot traffic

Nearby Amenities

  • Fred Kavli Performing Arts Center
  • Thousand Oaks City Hall
  • The Lakes
  • Gardens of the World
  • Mastro's Steakhouse
30,000
Cars Per Day on TO Blvd
200,000+
CPD on 101 Freeway
36
Apartments On-Site
2021
Year Delivered
Thousand Oaks Aerial View

Location

At the Heart of Thousand Oaks' Evolution

The Downtown Thousand Oaks Boulevard corridor is experiencing unprecedented investment and growth. New residences, retail, and restaurants are reshaping this tree-lined boulevard into a true downtown destination.

Get in Touch

Interested in This Space?

We're looking for the right restaurant concept to join 1710 on the Blvd. If you're an operator seeking a turn-key opportunity in one of the most exciting emerging locations in Ventura County, let's talk.

Drew Principe

Vice President